MOTHFIRE BREWING

A cultivated, optimistic, and alluring beacon for the community.


This fresh taproom and brewery for Mothfire Brewing expands the reach and vision for a popular local brewery. Opened in July 2023, the space is a beacon for the community, drawing people in by bringing together art, music, and good beer.

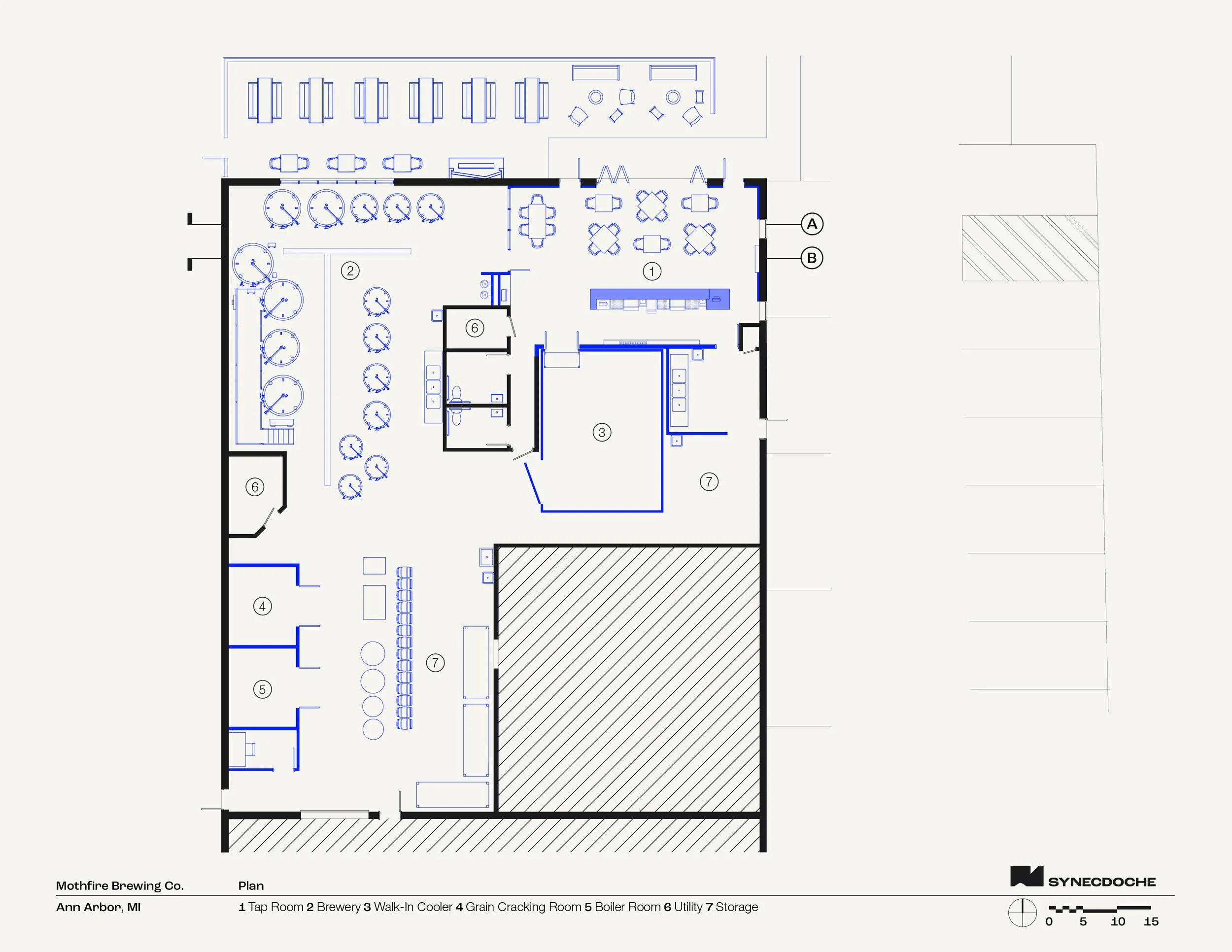
Having outgrown their first location, which was primarily production space, the brew area was optimized for the number of tanks and large walk-in-cooler to keep up with the increasing demand. Rather than hiding this process, large glass openings reveal the inner workings of the brewhouse from the street and taproom. Linear lights follow the path of the brew team, and playfully illuminate the stainless steel. Mirroring the display of the brewery activity, a folding nana-wall exposes the energy within the tap room. When open the taproom triples in size blurring the edge of interior and exterior space.  Like moths to a flame, both of these moments draw people in.

Using the brewery equipment as inspiration, industrial materials like stainless steel are juxtaposed against textural reveals and elevated with local art. Immediately when entering, raw CMU contrasts simple drywall creating a niche for product display. Warm, linear sconces punctuate the limited wall space lowering the volume to a human scale. 

The long, stainless steel bar organizes the space for seamless ordering and service. Seating was purposefully excluded from the bar's design to encourage spontaneous interactions between guests. The large walk-in cooler,  located immediately behind the bar made for easy tap connections from the front of house, while still being functional for back of house operations. An additional opening was installed for a self service reach-in from the taproom showcasing Mothfire’s colorful cans designs. The stainless steel bar and movable tables reflect color changing lights around the taproom, further connecting the built environment to the brand design on the cans. These reflections contribute to the overall vibe of the space.

 
Previous
Previous

Pond House

Next
Next

NORTH COAST INN